海to太陽 あゆみハウス大芝
千葉県茂原市大芝
2026.4.10現在
空室状況
| 男性 | 定員4名 定員募集中 |
|---|---|
| 女性 | 定員4名 定員募集中 |
2026年6月1日より入居開始
千葉県茂原市大芝に、プレミアムなグループホームが誕生。
2026年6月 新規オープン予定
指定障害福祉サービス 共同生活援助(定員8名/全室鍵付き個室)
【 あゆみハウス 大芝 】(海to太陽 4号棟) 「ご家族の不安をゼロに。そして、ご本人の快適で豊かな毎日を。」
合同会社あゆみがご提供するのは、単なる「住まい」ではなく「上質な暮らし」です。
国内最高峰の性能を誇る『一条工務店』施工の邸宅で、24時間体制の手厚い見守りと、一人ひ とりに寄り添った個別サポートをお約束します。
施設概要
| 施設名 | グループホーム海to太陽 あゆみハウス大芝 |
|---|---|
| 住所 |
千葉県茂原市大芝2丁目10-12 |
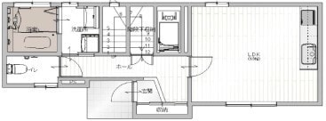
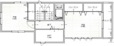
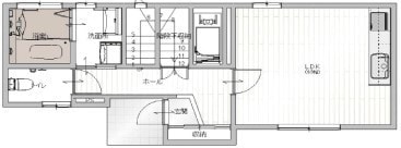
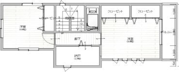
| 定員 | 8名(全8部屋個室 ) |
| 間取り |
木造平屋 8LDK |
| エアコン | 全居室完備 |
| カギ | 全部屋あり |
| 駐車場 | あり(6台分) |
| その他 | 床暖房完備 |
間取り
1F
料金(月額)
| 家賃 / (自己負担分) | 男性棟 37,200円~(実質負担15,000円~) ※特別給付・市町村補助含む 女性棟 37,200円~(実質負担10,000円~) ※特別給付・市町村補助含む |
|---|---|
| 食事代 | 月30,000円 / 朝400円・昼550円・夕600円 |
| 水道光熱費 | 9,000円 |
| 日用品費 | 4,000円 |
| インターネット | 家賃に込み (Wi-Fiの使用に限る) |
※入居時に一時金(敷金)として10,000円をお預かりします。
修繕費を差し引いた額を退出時にご返金いたします。
利用条件
| 対象者 | 精神障がい者 知的障がい者 |
|---|---|
| 年齢 | 18歳~ |
通院同行
| かかりつけ精神科病院 | 月一回まで無料 |
|---|---|
| 内科など | 1時間/1,000円 |
|
20円/1kmにつき |
当グループホームのご契約から入居までの流れは
こちらから