海to太陽 茂原ハウス
千葉県茂原市高師

2025.9.10現在
空室状況
女性 | 定員4名 即入居可能 |
---|
2025年11月1日より入居開始
グループホーム海to太陽初の女性専用ホーム。
最寄りの「茂原駅」まで、徒歩9分!
大型ドラッグストアまで、徒歩3分!
お出かけ、お買い物にもアクセス良好な生活しやすいグループホームです。

施設概要
施設名 | グループホーム海to太陽 茂原ハウス |
---|---|
住所 |
茂原市高師338番地3 |
定員 | 4名(全4部屋個室 )女性のみ |
間取り |
木造スレート葺3階建 4LDK+2S |
エアコン | 全居室完備 |
カギ | 全部屋あり |
駐車場 | 要相談 |
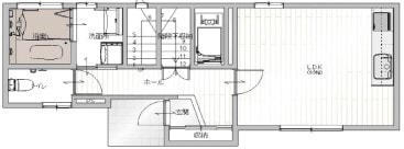
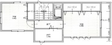
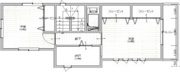
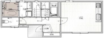
間取り
1F

2F

3F





料金(月額)
家賃 / (自己負担分) | 35,500円 / (12,750円) ※特別給付・市町村補助含む |
---|---|
食事代 | 27,000円 / 朝・夕 |
水道光熱費 | 15,000円 |
日用品費 | 4,000円 |
インターネット | 家賃に込み (Wi-Fiの使用に限る) |
※入居時に一時金(敷金)として10,000円を預かります。
修繕費を差し引いた額を退出時に返金いたします。
利用条件
対象者 | 女性 精神障がい者 知的障がい者 |
---|---|
年齢 | 18歳~ |
通院同行
かかりつけ精神科病院 | 月一回まで無料 |
---|---|
内科など | 1時間/1,000円 |
20円/1kmにつき |
当グループホームのご契約から入居までの流れは
こちらから